WW Gemeindehaus Losone
Concorso Nuova Casa Comunale di Losone
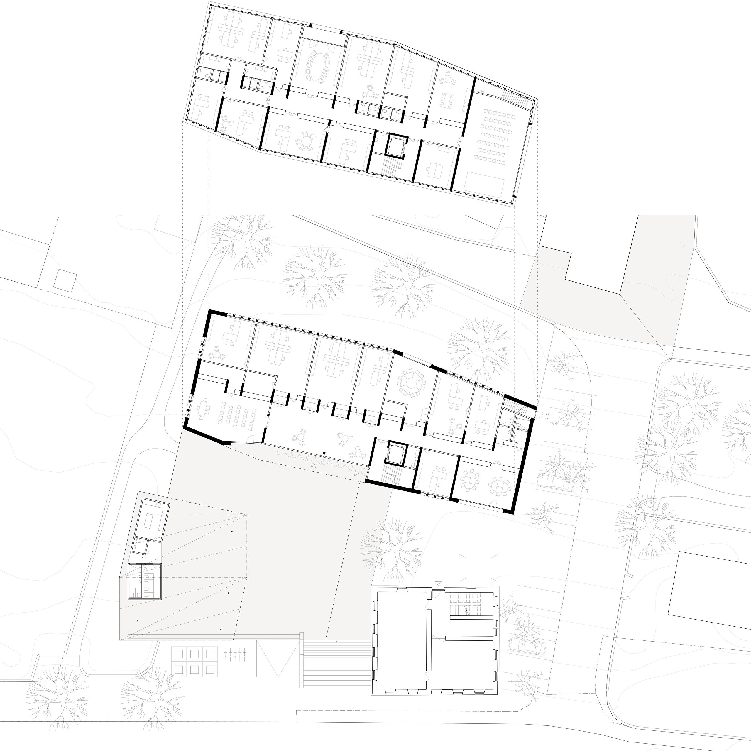
Projektbeschrieb

 

Situazione

Negli ultimi decenni, Losone è diventato uno dei Comuni più popolosi del Ticino. Tra i tre nuclei originari di San Lorenzo, San Rocco e San Giorgio e le zone sviluppatesi più recentemente manca un Centro urbano di riferimento per tutto il borgo.

La Nuova Casa Comunale e lo spazio esterno coperto formano, insieme all’edificio storico della Casa Comunale, una piazza generosa pubblica che si lega direttamente alla Via Municipio — un asse stradale d’importanza.

Grazie all’estremità caratteristica della Piazza i nuovi edifici, inclusa la facciata principale dell’attuale Casa Comunale, s’indirizzano chiaramente su questa strada.

Lo spazio vuoto tra le tre componenti dell’insieme permette anche un collegamento secondario al terreno del Patriziato e alla Contrada San Rocco, la quale allargata verso il nucleo, offre una vista libera sulla chiesa e viene trasformata in una zona per traffico lento, includendo i posteggi per la Nuova Casa Comunale e dintorni in modo da liberare il sagrato.

Lo spazio verde tra il complesso e il Vicolo dei Tigli crea una gradevole distanza con i palazzi circostanti. Il verde, con grandi alberature, trova la sua continuazione nel giardino dell’ex Scuola dell’infanzia.

 

Architettura

Il volume semplice e compatto della Nuova Casa Comunale comunica con le diverse geometrie dei mappali. La facciata che avvolge l’edificio si suddivide in una parte bassa interpretata come una base solida, una parte intermedia arricchita da un nastro di finestre e una parte finale di copertura. Il bordo del tetto – come le facciate longitudinali – non è completamente dritto, ma forma un angolo ascendente per mostrare la presenza della Sala del Consiglio comunale. Anche le altre sale riunioni sono visibili nelle facciate, interrompendo la rete continua delle finestre degli uffici. L’incisione nel volume verso la Piazza segnala l’ingresso.

L’utente entra frontalmente in un grande atrio dove incontra i vari sportelli. Un corridoio guida verso gli uffici e le sale di uso pubblico. Ai dipendenti invece è riservata un’entrata separata verso la scala principale e l’intero primo piano. L’organizzazione dei vari locali al pianterreno si ripete al piano superiore: un corridoio centrale affiancato da uno strato di spazi contenente i servizi, le entrate ai locali nonché armadi disponibili e tecnici.

La tecnica principale si trova in posizione centrale al seminterrato. Una parte del sotterraneo è occupata dall’archivio accessibile direttamente con l’ascensore, mentre l’altra parte prevista sotto l’edificio e la Piazza, ospita i posteggi. Verso la Via Municipio l’autorimessa sporge dal terreno costruendo il limite al marciapiede allargato e invitando all’inizio dello spazio pubblico. Questo spiazzo integra la scala sulla Piazza, l’ingresso al posteggio sotterraneo, l’isola ecologica per la raccolta dei rifiuti ed una stazione per biciclette “velospot”.

 

Struttura e Costruzione

La struttura della Nuova Casa Comunale è progettata con una costruzione massiccia: pareti esterne portanti e una serie di pilastri sull’asse centrale.

Dato il loro posizionamento omogeneo, su ogni piano ne risulta una struttura economica. Il vano centrale con lift e scale più qualche muro in calcestruzzo armato riprendono le forze orizzontali dovute a vento e sisma.

Lo zoccolo in calcestruzzo armato faccia a vista con isolamento interno, garantisce durabilità dove il pubblico, veicoli e acqua potrebbero generare danni.

La muratura monoblocco perfettamente isolante nella parte superiore funziona come stoccaggio termico per ritardare il riscaldamento, come pure il raffreddamento ​dell’edificio in modo semplice e naturale, così da ridurre il consumo d’energia. L’intonaco minerale equilibra per di più l’umidità degli spazi interni.

La costruzione con materiali durabili di provenienza locale garantisce una sostenibilità ambientale ed una modica manutenzione.

Indipendenti dall’attuale Casa Comunale, le nuove costruzioni possono essere realizzate senza limitare l’operatività degli spazi amministrativi.

 

Spazio esterno coperto

Una copertura elegante marca l’angolo della Piazza che sporge dal terreno alla Via Municipio. Le grandi pieghe in calcestruzzo armato seguono la struttura verticale e la rinforzano alleggerendo la sottostruttura. Inoltre mettono in relazione le varie parti della Piazza, che si offre per molteplici attività e manifestazioni ai cittadini.

Verso il terreno non ancora definito a sud, un blocco con servizi conclude il generoso spazio aperto, tuttavia protetto da pioggia e sole. Con i pilastri inclinati quasi invisibili, il tetto sembra una scultura volante.

Projektdaten

Offener Projektwettbewerb 2019
Ausloberin: Gemeinde Losone
Nutzung: Gemeindehaus und öffentliche Piazza, Parkgarage
Modell und -fotos: Modellbau Zaborowsky