Attika Alpenquai Luzern
Zwischen Berg und See
Projektbeschrieb

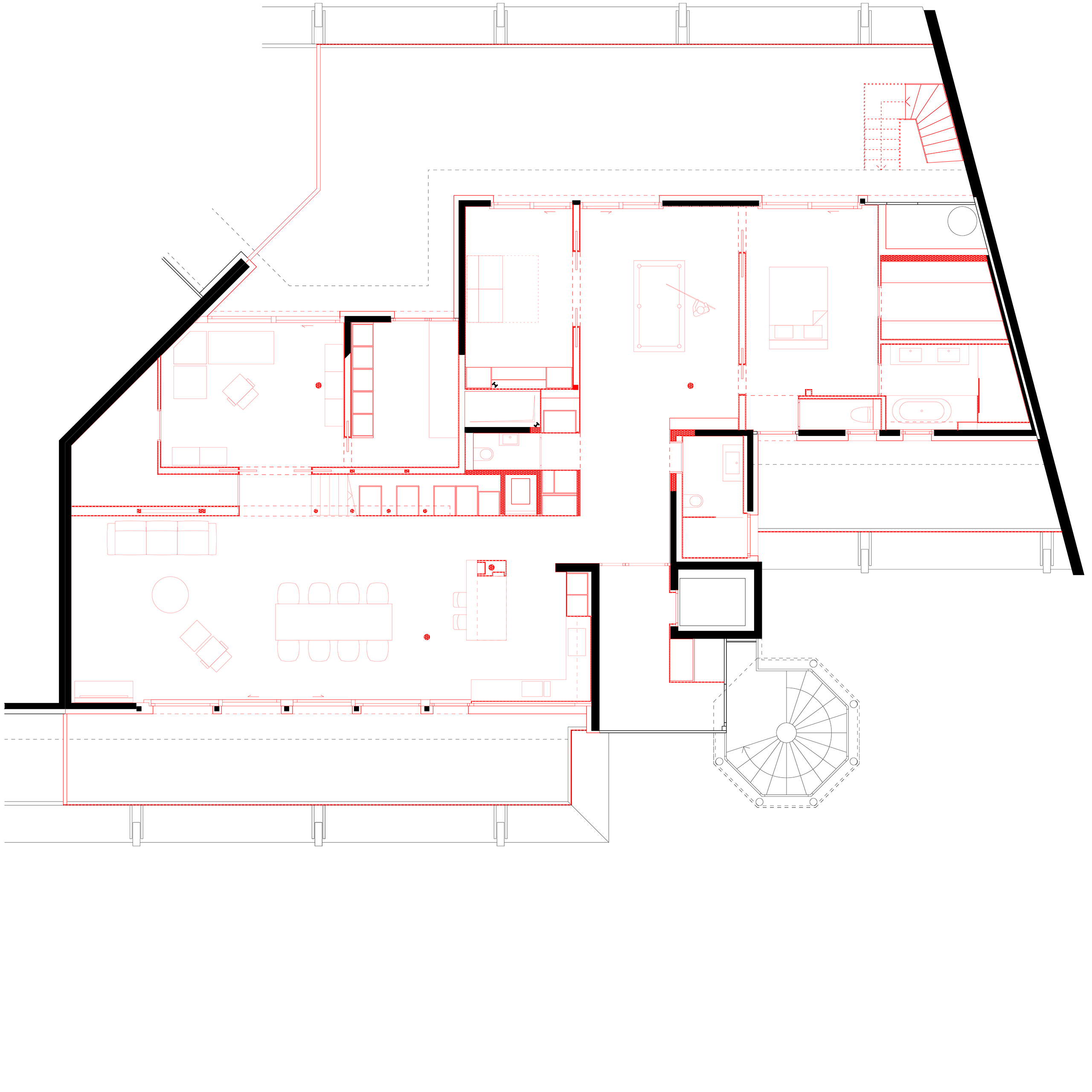
Die verwinkelte Attikawohnung aus den 1980-er Jahren mit zusätzlichen Technikräumen auf dem Dach wurde zu einer fliessenden Wohnlandschaft, ähnlich einer Loft umgebaut. Die Öffnungen der Räume über die ganze Gebäudetiefe ermöglichen das Sonnenlicht von Süden und die Aussicht im Norden gleichzeitig einzufangen. Der Dachgarten wird durch die neuen Treppen direkter an das Wohngeschoss angebunden. Hochwertige, aber schlichte Materialien in Kombination mit ausgesuchten Möbelstücken erzeugen eine gediegene Raumatmosphäre

Projektdaten

Fertigstellung 2011
Direktauftrag
Bauherrschaft: privat
Leistungen: Projektierung, Ausführungsplanung, Baubegleitung
Mitarbeit: Gabi Bernath, Helen Brotschi, Flurina Cahannes
Baumanagement: Stadelmann Baumanagement
Fachplanung: Arregger Partner, Wirthensohn, EP Vinzens
Fotos: Roland Bernath
Nutzung: Maisonette-Wohnung, Dachterrassen
Bausumme: 1’406’000 CHF