MFH Horwerstrasse Luzern
Die modulare Stadtvilla
Projektbeschrieb

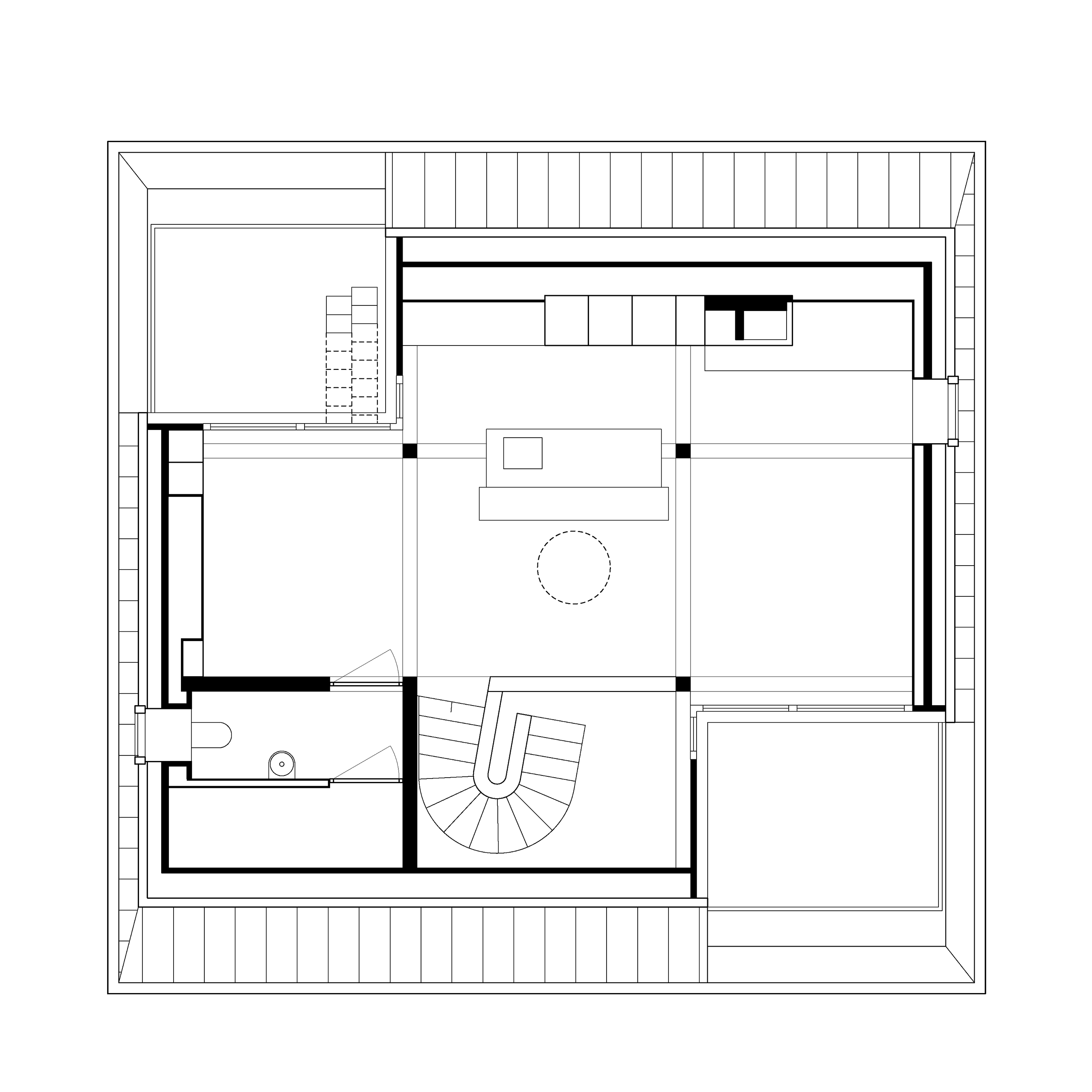
Die Grundtypologie des Gebäudes gleicht den kleinen Stadtvillen im Strassenzug: Ein solid gebauter dreigeschossiger Kubus mit einer Art Walmdach und allseitig befensterten Fassaden.

Aufgrund des relativ kleinen Abstands zu den Nachbarsgebäuden im Norden und Süden öffnet sich das Gebäude vor allem gegen Osten und Westen. Diese Ausrichtung bietet eine ideale Besonnung, welche in der durchstossenden Raumfolge erlebt werden kann. Durch die angegliederten Aussenräume wird diese Ost-West-Achse erweitert. Dazu erlauben die Eckfenster Ausblicke bis in die Berge.

Der Grundriss ist in neun praktisch gleich grosse Einheiten gegliedert. Eine davon belegt das grosszügige allgemeine Treppenhaus, zwei die Kerne mit Nasszellen und eine Einheit beherbergt jeweils die Küche. Die restlichen fünf Räume sind beliebig nutzbar. Je nach Bedürfnis lässt sich der Grundriss von einer offenen Loft zur klassischen Wohnung mit vier abschliessbaren Zimmern transformieren.

Projektdaten

Fertigstellung 2019
Studienauftrag 2017 — 1. Rang
Bauherrschaft: privat
Leistungen: Projektierung, Ausführungsplanung, Baubegleitung
Mitarbeit: Gabi Bernath, Helen Brotschi, Katrin Oechslin
Baumanagement: Büro für Bauökonomie
Fachplanung: Emch+Berger WSB, Martinelli+Menti, brunner elektroplan, Partnerplan, Gut Gebäudetechnik
Fotos: Roland Bernath
Nutzung: 3 Wohnungen, 1 Showroom
Bausumme: 2’808’000 CHF
Gebäudevolumen: 1’817 m3

Publikationen